Terug naar hoofdinhoud
Michael Fatan (edibo)

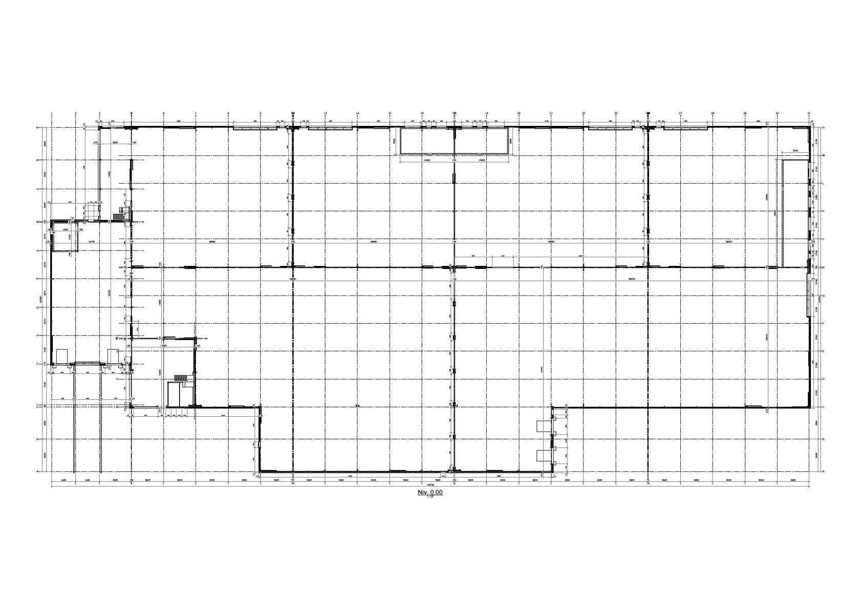
Logistieke hal opgesplitst in 5 aparte entiteiten

Multifunctionaliteit en flexibiliteit troef

Op het terrein naast de bestaande vestiging van JS Logistics, onderdeel van transportbedrijf Smets uit Aarschot, verrees een nieuwe logistieke hal met bijbehorende kantoren. De nieuwbouw moest eerst en vooral multifunctioneel zijn, zodat bepaalde delen apart verhuurd kunnen worden aan verschillende partners.

Vandaar dat het geheel is opgesplitst in vijf aparte entiteiten, waaronder twee delen met een eigen kantoorgebouw en drie met beperkte sociale ruimtes. Elk gedeelte van de hal is voorzien van vakwerkstructuren om het aantal structurele elementen in het midden van de ruimte te minimaliseren. In functie van de stellingen werd een vrije hoogte van 10 meter onder de vakwerkspanten opgelegd. Het gebouw is ingepakt met circa 5000 m² stalen sandwichpanelen, die conform de brandwetgeving een brandweerstand van EI60 garanderen, en circa 7900 m² stalen dakplaten. In totaal bevat het nieuwe gebouw van JS Logistics 380 ton staal.

  • Nieuwlaan 26, Aarschot
    Plaats
  • JS Logistics, Aarschot
    Opdrachtgever
  • A'aksent architectenbureau, Holsbeek
    Architect / Ontwerper
  • edibo, Lommel
    Studiebureau (stabiliteit)
  • edibo, Lommel
    Hoofdaannemer
  • edibo, Lommel
    Staalbouwer
  • edibo, Lommel
    Andere staaltoepassingen
  • edibo
    Infosteelleden
  • Michael Fatan (edibo)
    Foto