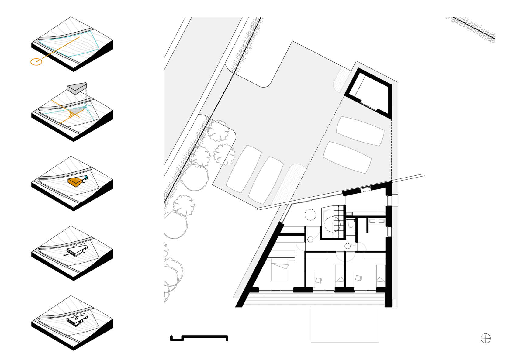
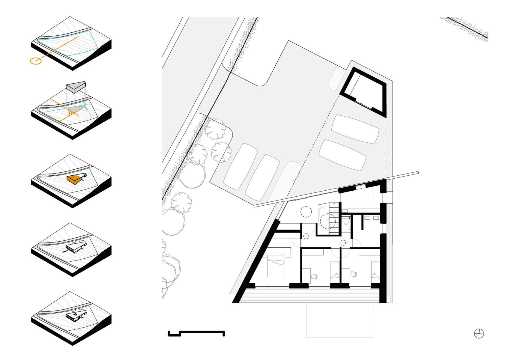
De eigenaars van dit huis in de omgeving van Hoei, die gepassioneerd zijn door architectuur, besloten beton en cortenstaal te combineren, zowel om praktische als esthetische redenen. Het dragende element van de structuur is een ter plaatse gegoten betonwand van 6 meter hoog, die in het zicht gelaten is om een brutalistische uitstraling te creëren.
Ook de overige muren, de vloerplaat en de plafonds bestaan uit beton. Om een al te kille, industriële sfeer te vermijden, werden de gelijkvloerse gevels bekleed met cortenstaal – goed voor meer dan 138 m² in totaal. De panelen hebben verschillende breedtes en brengen ritme en reliëf in het interieur. Los van het esthetische aspect (roest en patina) is cortenstaal ook een praktische keuze, want dankzij zijn zelfbeschermende eigenschappen heeft het geen onderhoud nodig.